4
2
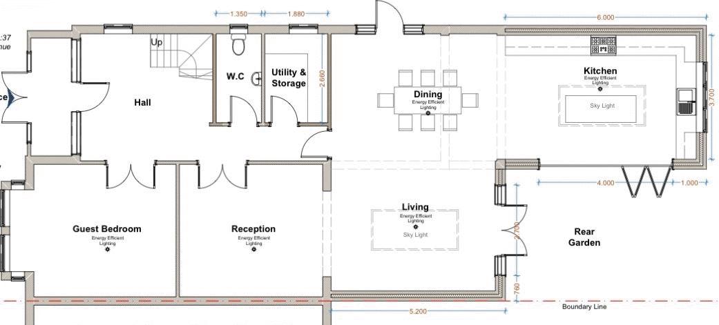
2An outstanding four double bedroom semi detached house which has been extended to provide superb family accommodation to include en-suite to master bedroom, guest bedroom with balcony, exquisite kitchen/family room and two reception rooms. Early viewing advised. EPC: D.
Double glazed door to entrance porch. Tiled flooring. Hard wood door to grand entrance hall.
Radiator. Tiled flooring. Power points. Feature staircase to first floor with cupboard under. Panelling to walls. Dado rail. Double doors to lounge.
Triple glazed obscure window to side. Underfloor heating. Inset lighting to ceiling. Tiled flooring. Concealed cistern W.C. Vanity wash hand basin. Tiling to walls.
16' 0'' x 13' 1'' (4.87m x 3.98m)
Triple glazed Bay window to front. Inset lighting to ceiling. Panelling to walls. Power points. Tiled flooring.
33' 9'' > 14' 8" x 24' 6'' (10.28m > 4.47m x 7.46m)
Twin bifold double glazed doors to rear. Underfloor heating and heat exchange unit. Inset lighting to ceiling. Two skylight window lanterns. Tiled flooring. Power points. Panelling to walls. A range of base and eye level units with granite work surfaces. Inset sink unit with mixer tap. Rangemaster gas oven with extractor fan over. Built in fan oven and microwave. Integrated dishwasher and fridge. Island unit with breakfast bar and storage space. Open to:
14' 0'' x 13' 0'' (4.26m x 3.96m)
Underfloor heating. Inset lighting to ceiling. Tiled flooring. Power points. Double doors to entrance hall.
8' 8'' x 6' 10'' (2.64m x 2.08m)
Obscure triple glazed window. Tiled flooring. A range of base and eye level units with complimentary work surface. Inset sink unit with mixer tap. Recess for appliances. Cupboard housing boiler and lagged tank. (Not tested). Power points.
Inset lighting to ceiling. Fitted carpet. Power points. Stairs to second floor landing.
23' 6'' x 16' 2'' (7.16m x 4.92m)
Triple glazed Bay window to front. Two radiators. Fitted carpet. Power points. Dressing area with an extensive range of fitted wardrobes with hanging and shelf space. Open to enclosed balcony.
14' 2'' x 11' 0'' (4.31m x 3.35m)
Double glazed window to rear. Radiator. Inset lighting to ceiling. Fitted carpet. Power points. A range of fitted wardrobes.
12' 4'' x 11' 5'' (3.76m x 3.48m)
Double glazed window to rear. Radiator. Inset lighting to ceiling. Fitted carpet. Power points. A range of fitted double wardrobes. Panelling to walls.
Obscure double glazed window. Heated towel rail. Underfloor heating. Inset lighting to ceiling. Tiled flooring. White suite comprising of concealed cistern W.C. Double walk in shower. Vanity wash hand basin with marble surround. Tiling to walls.
Double glazed window to side. Fitted carpet.
17' 4'' x 16' 11'' (5.28m x 5.15m)
Double glazed French doors to rear with Juliet balcony. Two velux windows to front. Eaves storage. Walk in wardrobe. (Please note this room is presently being used as a cinema room and office).
Obscure double glazed window. Tiling to walls with border tile. Bath with shower over. Concealed cistern W.C. Vanity bowl hand basin with cupboard under. Recesses for bathing products. Tiling to floor.
Immediate paved patio leading to lawn. Variety of trees. Fenced boundaries. Personal door to former garage.
Mainly block paved providing parking for three vehicles. Shared driveway.
15' 3'' x 9' 11'' (4.64m x 3.02m)
Double glazed window. Double glazed door to front. Power and light connected.
Tenure: Freehold. Thurrock Council Tax Band: E. EPC: D.
AGENTS NOTES 1. Money Laundering Regulations and sanctions checks: Intending purchasers will be asked to produce identification documentation at offer stage and we would ask for your co-operation in order that there will be no delay in agreeing the sale. 2. We have been advised by the Vendor that all the heating equipment and appliances mentioned within these particulars were functional at the time of our inspection. However, due to Chandler & Martin not being professionally qualified in this field, we would recommend that they are thoroughly tested by a specialist (i.e. Gas Safe registered) before entering any purchase commitment. 3. Although our Vendor(s) has advised us that all fixtures, fittings and chattels mentioned within these details will remain, we strongly recommend verification by a solicitor before entering a purchase commitment. 4. These particulars do not constitute any part of an offer or contract. No responsibility is accepted as to the accuracy of these particulars or statement made by our staff concerning the above property. Any intended purchaser must satisfy him / herself as to the correctness of such statements and these particulars. All negotiations to be conducted through Chandler & Martin. 5. Chandler & Martin advise all purchasers to make their own enquiries to the relevant parties to ascertain whether there could be any planning applications or developments that could affect the property or local area. Consideration should also include details relating to the Lower Thames Crossing.
Please complete the form below to request a viewing for this property. We will review your request and respond to you as soon as possible. Please add any additional notes or comments that we will need to know about your request.
| Name | Location | Type | Distance |
|---|---|---|---|
Tel: 01375 891007
Email: sales@chandlerandmartin.com